ZAGREB, RUDEŠ | NOVOGRADNJA, STAN 72 m2

Ukratko

ID:
S2112
Cijena
€ 299.000
Tip nekretnine:
Stanovi
Lokacija:
Zagreb
Površina :
72 m2
Broj spavaćih soba :
3
Broj kupaonica :
1
Parking :
1

Opis nekretnine

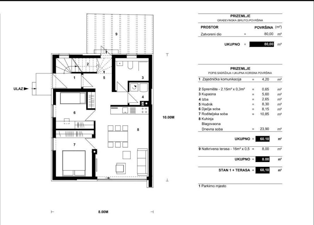
Predstavljamo Vam impresivan i suvremeni stan u Rudešu, Trešnjevka – Sjever. Ova nekretnina nalazi se na izrazito traženoj lokaciji, s odličnom povezanošću do svih bitnih sadržaja – osnovna škola Rudeš (300 m), dječji vrtić (300 m), Kaufland (350 m), ljekarna (50 m), jezero Jarun (1,5 km) te Zagrebačka avenija (250 m).

Prostorna funkcionalnost:
Neto površina od 72,6 m² raspoređena na dvije prostrane spavaće sobe, elegantan openspace prostor (dnevni boravak, kuhinja, blagovaona i hodnik), praktičnu izbu s priključkom za perilicu i dizalicom topline, modernu kupaonicu te spremište ispod stubišta.

Vanjski sadržaji:
Privatni dio dvorišta zaklonjen od pogleda, prostrana vanjska natkrivena terasa, vanjsko spremište i osigurano parkirno mjesto pružaju dodatnu vrijednost i udobnost.

Izgradnja i materijali:
Moderna konstrukcija s kombinacijom betona i YTONG blokova, armiranom betonskom stropnom pločom i ETICS fasadom.
Visokokvalitetni podovi – keramika i troslojni parket hrast Chevron pogodni za podno grijanje.
PVC stolarija s elektro upravljanjem roletama i integriranim komarnicima, kao i sofisticirani interijerski detalji.

Tehnička opremljenost:
Napredni sustavi grijanja (dizalica topline s podnim grijanjem, radijator u kupaonici, inverterska klima jedinica) uz mogućnost individualne regulacije temperature u svakoj prostoriji.
Sustavi za osiguranje visokog energetskog standarda (energetski razred A+), prilagodba za indukciju i punionicu za električna vozila, te sve ostale instalacije (struja, voda, kanalizacija, kabel) projektirani su prema najnovijim standardima.

Prilagodba Vašoj viziji:
Stan se prodaje nenamješten, što Vam omogućuje da ga uredite prema vlastitoj estetskoj i funkcionalnoj viziji.
Radovi na nekretnini su u tijeku, s planiranim završetkom u rujnu 2024. godine, čime se osigurava useljenje do kraja iste godine. Ova jedinstvena prilika spaja vrhunsku gradnju, elegantan dizajn i izvanrednu lokaciju, čineći stan idealnim izborom za suvremeno stanovanje i dugoročnu investiciju.

Za više informacija molimo kontaktirajte:
Matija IMB
Ova e-mail adresa je zaštićena od spambota. Potrebno je omogućiti JavaScript da je vidite.
+385 91 363 5480

Ugovorni agent


Sve slike