- Nalazite se ovdje:
- Naslovnica
- PRODAJA NEKRETNINA
- Dubrovnik
- Stanovi
- ZAGREB | LUKSUZNI PENTHOUSE | TOP LOKACIJA | 137 m2
ZAGREB | LUKSUZNI PENTHOUSE | TOP LOKACIJA | 137 m2
Ukratko
- ID:
- S2301
- Cijena
- € 635.000
- Tip nekretnine:
- Stanovi
- Lokacija:
- Zagreb
- Površina :
- 137 m2
- Broj spavaćih soba :
- 4
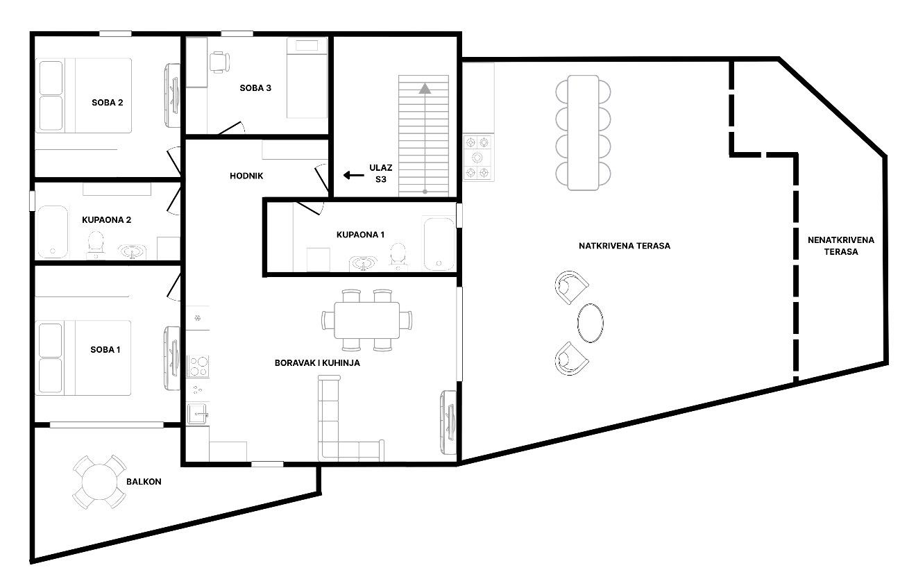
Opis nekretnine
LUKSUZNI ČETVEROSOBNI PENTHOUSE – NOVOGRADNJA 2026.
Na prestižnoj lokaciji podno Medvednice, u mirnom i zelenilom okruženom Markuševcu, prodaje se vrhunski četverosobni penthouse smješten na 2. katu ekskluzivne urbane vile s ukupno tri luksuzna stana. Ovaj iznimno kvalitetan stan pruža visoku razinu privatnosti, moderan dizajn i sofisticiran životni stil.
Površina i raspored
Ukupna površina: 137 m²
Tlocrt je promišljeno osmišljen kako bi pružio maksimalnu funkcionalnost i udobnost:
• Prostrani dnevni boravak spojen s kuhinjom i blagovaonicom
• Tri komforne i svijetle spavaće sobe
• Dvije moderno uređene kupaonice
• Velika natkrivena terasa s prekrasnim pogledom na zelenilo i okolnu prirodu
Parking i spremište
• Dva garažna parkirna mjesta
• Pripadajuće spremište
Kvaliteta gradnje i oprema
Stan je izgrađen i opremljen prema najvišim suvremenim standardima:
• Materijali najviše kvalitete i visoke energetske učinkovitosti
• PVC stolarija premium klase (antracit), s električnim podizačima roleta i komarnicima
• Sustav grijanja i hlađenja: dizalice topline, klima uređaji te podno grijanje
• Vrhunski parket, moderna keramika i kvalitetan fasadni sustav
• Protupotresna gradnja prema najnovijim standardima
Lokacija
Markuševec je idealna lokacija za one koji žele spoj prirode i urbane praktičnosti. U blizini se nalaze:
• Javna prometna infrastruktura, trgovine, škole, vrtić i sportski sadržaji
• Brz pristup centru grada
• Sljemenska žičara, brojne planinarske staze i prirodne rekreativne zone
Završetak gradnje
Predviđen završetak radova: ljeto 2026.
Prednosti kupnje
• Mogućnost dogovora popusta na avansnu uplatu
. Provizija uključena u cijenu
Kontakt:
Ova e-mail adresa je zaštićena od spambota. Potrebno je omogućiti JavaScript da je vidite.
+385 91 363 5480
